Detached house for Gibbs timber frame

Detail 1. Soleplate and post setting out

Detail 2.  Ground floor panel layout

Detail 1

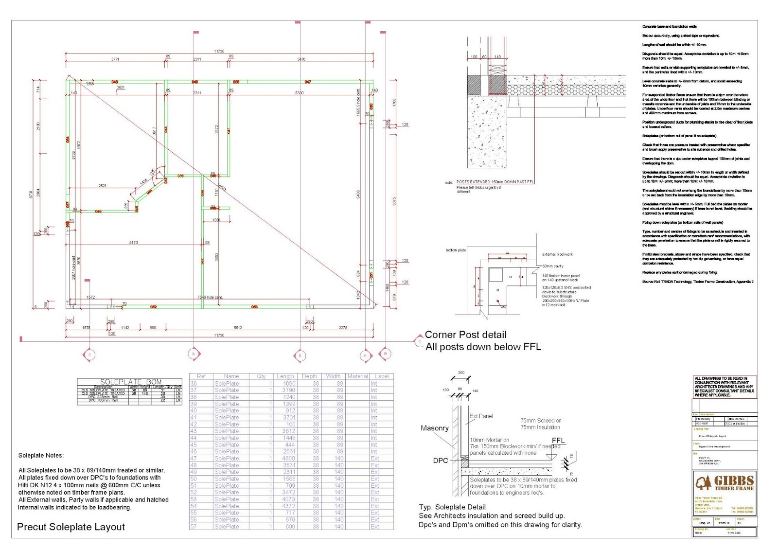
A precut soleplate layout was completed once preliminary drawings are approved. This shows the rising wall 7KN block and soleplate setting out. The rising wall heights depend on the Architects detail in regards to insulation and screed build up. Most the posts in the building are set flush to the block and beam on a padstone, wind frames generally go down deeper.

Posts are clearly indicated on the drawings and finished plate level so that the builder can not be confused and leave them out.

Details on fixing and individual numbers of soleplate minimizes any errors on site.

DETAIL 2

Ground floor panel layout is produced showing fixing details, panel numbers and weights, also 3D just showing timber frame walls and steel posts. 

Detail 3. Sections from varies areas

 

Detail 4. Section through balcony showing steel work and rafters

Detail 3 and 4.

Before BMK complete the wall panels, they work on sections and steel work, and design the wall panels around them.

BMK draw everything in situ and 3D and hand over a complete model of the building to the client.

Sections are taken from the most complicated part of the structure to highlight whats going on between the elements. 

 

Detail 5. First floor layout

Detail 6. Steel general GA

Detail 7. 3D drawing of steel and fixings

Detail 8. Full 3D with all elements of the building